Home Voertuigen Te Koop - Electronica Te Koop - Huis & Tuin Te Koop - Kleding & accessoires Te Koop - Sport & Vrije tijd Te Koop - Diversen Onroerend Goed - Verkoop Onroerend Goed - Verhuur Diensten Contact Adauga anunt

Găsește ce cauți.

Mii de anunțuri actualizate zilnic

  • Hongarije Nagykoros op HUURKOOP Tanya midden in de natuur

  • Hongarije Nagykoros op HUURKOOP Tanya midden in de natuur
  • Hongarije Nagykoros op HUURKOOP Tanya midden in de natuur
  • Hongarije Nagykoros op HUURKOOP Tanya midden in de natuur
  • Hongarije Nagykoros op HUURKOOP Tanya midden in de natuur
  • Hongarije Nagykoros op HUURKOOP Tanya midden in de natuur
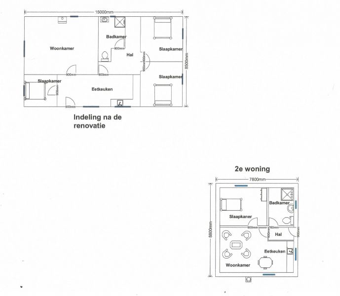
  • Hongarije Nagykoros op HUURKOOP Tanya midden in de natuur We starten binnenkort met de renovatie van de reeds gedeeltelijke gerenoveerde Tanya [woning]125m² plus 2e woning 56m² op het terrein gelegen in een natuur gebied op 4273m² eigengrond Prachtige gelegen tussen bossen en weidse velden maar toch dicht bij een dorpje en grote stad 70 km van het vliegveld van Budapest De woning is zeer geschikt voor permanente bewoning. Stroom en water zijn aanwezig. Verwarming: Houtkachel Nederlandstalige huisarts praktiseert op ± 20 km van de woning De woning wordt geheel gerenoveerd met kunststofkozijnen en HR isolatie beglazing opgeleverd, bij interesse is er nog inspraak mogelijk bij bijvoorbeeld de keuze van de vloertegels, keuken en de kleuren van de wanden Het geheel staat op 4273m² eigengrond Voorzieningen: Water uit eigen bron, 220V elektra ID-LW 16 Huurkoop aanbetaling € 10.375,- incl. contract ko
  • (Foloseste formularul de contact)

Anunturi similare

Deze mooie woning bevindt zich in het dorpje Gesha, vlakbij de stad Dryanovo, en...

59000

EUR

Te koop: huis in de grensstreek met 5 slaapkamers te Hoolst 34, 2490 Balen. Dit grote...

375000

EUR

Wonen op een mooie boerderij met permanent een vakantiegevoel Dat kan dit is je kans:...

440000

EUR

CELE MAI CITITE

Deze mooie woning bevindt zich in het dorpje Gesha, vlakbij de stad Dryanovo, en...

59000

EUR

U wilt thuis blijven wonen maar kan dat niet meer Wij passen uw huis in 2 dagen aan...

;

Wonen op een mooie boerderij met permanent een vakantiegevoel Dat kan dit is je kans:...

440000

EUR

Formular de contact
  • Adresa de mail:
    Numele Dvs.:
    Mesaj:

Comentarii